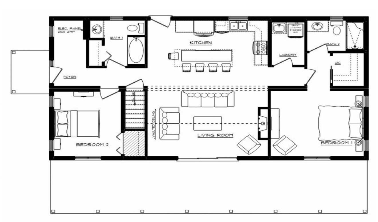
Nov 24, 2025 Share Back to Blog Back to Blog Happy Homeowners: Tamara & Ann’s Downsized Dream Home Embracing everything that retirement has to offer, Tamara and Ann have been enjoying life as it comes. But the time has come to set their sights on the future. Knowing exactly how difficult it can be to find and move into the perfect home once your mobility has decreased, they chose to future-proof their life. Or in their own words, “It was better to get ahead of the curve and plan for this move on our terms, rather than wait for our health to force an unplanned move.” And so the search began for their forever home. When none of the pre-built homes they explored met their needs, Tamara and Ann decided to look into a custom build instead. With their existing cottage that would require extensive renovations, it would be easy enough to use the property for their new home. However, having looked into it as an option in the past, they knew that some trades could be difficult to find in cottage country, not to mention the numerous permits and bylaws they would have to work around. That’s where Quality Homes came in. After weighing their options, it was clear to Tamara and Ann that we checked all their boxes. “We were immediately sold. Having the house built in a factory avoided the warping of wood that would normally be exposed to the elements during the build process meant a better construction. The capability to customize the design and trim was essential to our decision. Having the Quality Homes support team behind the build meant we had all the expertise working together to ensure no issues.” Choosing their design was the hard part. With a very specific vision of what their custom home was going to look like, Tamara and Ann knew they needed something very special. This was when they discovered the true beauty of Quality Homes. With endless ability to customize your home, our floorplans are the foundation of your custom home dreams. QUALITY HOMES RIVERSTONE DESIGN TAMARA & ANN’S CUSTOMIZED RIVERSTONE FLOORPLAN And so even though it didn’t quite meet their requirements, they chose The Riverstone to begin their custom build. The bedrooms were separated to opposite ends of the home, along with the bathrooms. The main living areas were moved into the centre of the home as well, combined into one open concept space. They even chose to add cathedral ceilings to create a bright, airy atmosphere. Outside, the porch was expanded into a much more functional ten-foot covered deck. “It met the criteria of being a small single story house and our Building Consultant Nancy’s assurance that it was just a starting point and that we, as long as we stayed within the physical constraints of each module, could customize it to our hearts content, so we did. The more we rearranged the layout the more it made sense and became our perfect retirement home. And that’s the point. With a little imagination and trust in Quality’s team of experts the plan was enhanced to create the perfect space for our lifestyle and needs.” Once their design was finalized, it was time for Tamara and Ann to move onto the most exciting part of building a custom home—choosing their finishes. Exterior Finishes: Sierra Steel Siding by Gentek (Board & Batten Vertical – Colour: Black) Soffit, Fascia & Frieze Board by Gentek (Colour: Black) Roof Shingles by Owens Corning (Colour: Onyx Black) Kitchen/Living Room Finishes: Custom Cabinetry by Woodland Horizon Sleek Pull-Down Kitchen Faucet by Moen (Colour: Matte Black) Custom Range Hood with Maple Shiplap Accent Heat & Glo Propane Fireplace by Fergus Fireplace (With White Shiplap Surround) Vinyl Plank Flooring by Centura (Quantum Series – Colour: Island) Bathroom Finishes: Custom Vanity by Woodland Horizon Voss Bathroom Sink Faucet by Moen (Colour: Chrome) Vinyl Tile Flooring by Cranbrook Flooring (Northern Expressions Series – Colour: Calacutta) What is your favourite part of the home? “The kitchen for sure. We opted for an oversized island instead of a small island and separate dining area. It’s beautiful and serves our lifestyle perfectly. Dropping the wall between the kitchen and living room created one functional and impressive living space; the living room ceiling was pushed up into the roof attic allowing for a cathedral ceiling that further opens up the space.” With their finishes selected and their home heading into the Quality Homes Factory, the building process began. In June, construction began. By July, they had already had an opportunity to tour their modules inside our factory. In August, their old cottage was demolished and sitework began. And when September rolled around, it was time for Delivery Day! Our streamlined process has been fine-tuned over 38 years of building the finest modular homes in Ontario, and it shows in the speed and quality of every home. And it’s safe to say that Tamara and Ann were highly satisfied with the results. “Five months after the start of the build we moved in, with zero issues or concerns. By contrast, there are multiple builds around us that have been in progress, exposed to the elements and remain uninhabitable for over two years. The engineered, factory build process is hands down the better approach. Thank you, Quality Homes!” And now they can start their dream retirement in a comfortable, beautiful one-level home that perfectly reflects their style—and lifestyle! We’re so grateful to Tamara and Ann for sharing their experiences, and for trusting Quality Homes to build your dream home. We wish them all the best in their very own custom Riverstone! And before we go, we have one last piece of wisdom from our newest Happy Homeowners: “Trust the expertise of the Quality team, let your ideas flow and watch Quality realize them. Ask questions and don’t be afraid to push the envelope of what can be achieved.” CONTACT US: Send us a message online: click here Give us a call: 1-800-265-2648 Send us an email: info@qualityhomes.ca